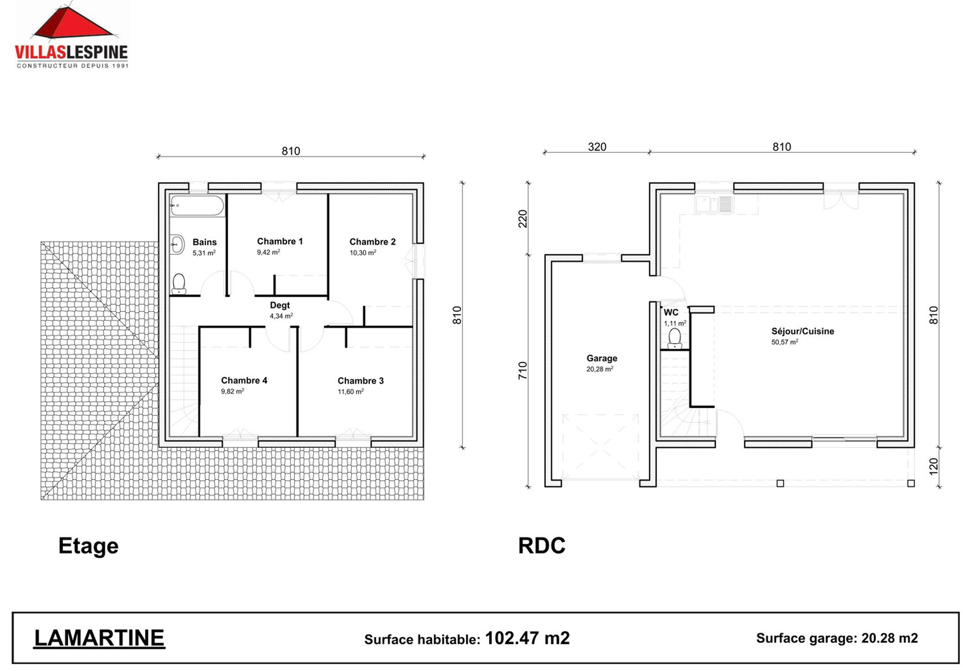
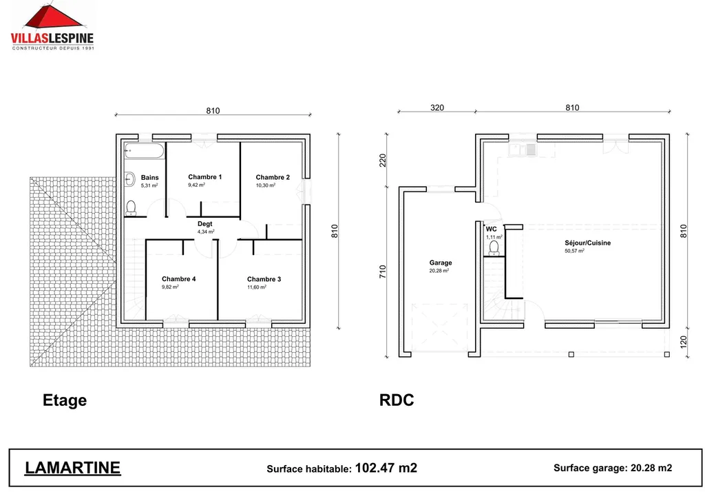
LAMARTINE - 90m²

Prix : 138 000 €

Villa en étage 2 volumes comprenant 3 ou 4 chambres à l'étage, et un garage de 20m² pouvant accueillir une voiture et une future buanderie communiquant avec la partie habitable sur un espace de vie de plus de 50m².

Cette villa facile à vivre s’adapte idéalement sur un terrain plat.

Type : Etage

Chambres : 3 ou 4

Sdb : 1

Wc : 2

 

Prestations comprises  

- Construction suivant dernière réglementation (RE2020)

- Tuiles terres cuites (coloris suivant nuancier)

- Menuiseries en pvc blanc et baie vitrée en aluminium

- Volets roulants électriques avec centralisation

- Pompe à chaleur air / air réversible dans la pièce de jour et dans la chambre parentale

- Radiateurs dans les autres chambres

- Sèche serviettes dans salle de bain

- Chauffe-eau thermodynamique 240L

- Carrelage avec plinthes assorties toute surface (hors chambres)

- Faïence murale dans salle de bain 

- Baignoire ou receveur de douche extra-plat et robinetterie dans salle de bain

Partager :
fiche technique
Type Etage
Chambres 3 ou 4
Salle de bain 1
WC 2
Nous écrire
Les champs indiqués par un astérisque (*) sont obligatoires