1. Qui sommes-nous ?
  2. Programmes & Terrains
  3. POMEYS 69590 - 1 Lot Le Clos Saint Charles
Retour

POMEYS 69590 - 1 Lot Le Clos Saint Charles

Vendu
Prix : 221 000 €




Caractéristiques principales :

  • Type de bien: Maison individuelle
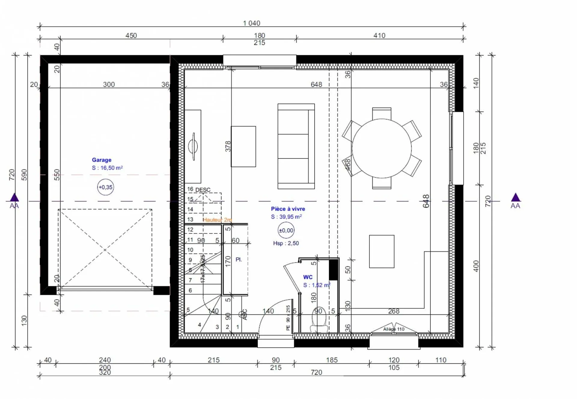
  • Surface habitable: 80 m² environ
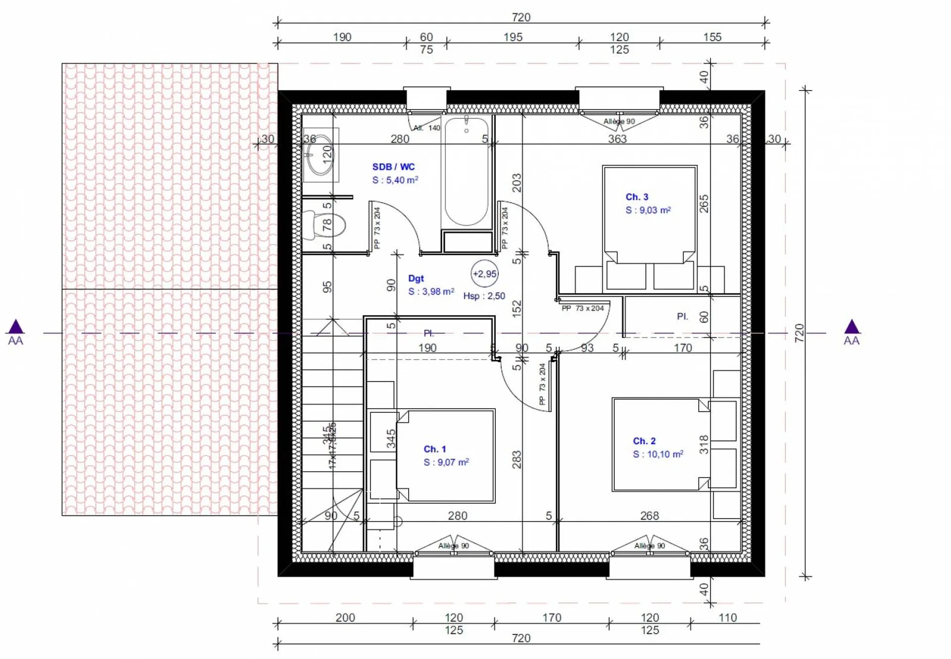
  • Nombre de chambres: 3
  • Salle de bain: 1
  • Garage: Oui
  • Terrain: 241 m² viabilisé

Description :

Profitez de l'opportunité d'acquérir une maison neuve, idéale pour une famille cherchant à s'installer dans un environnement paisible et verdoyant. Ce projet de maison allie modernité et confort, avec des finitions de qualité et des options de personnalisation pour répondre à vos besoins.

Aménagements intérieurs :

  • Salon / Séjour / Cuisine: Grand espace de vie lumineux grâce aux baies vitrées ouvrant sur la future terrasse et le jardin (exposition Sud / Ouest)
  • Chambres: 3 chambres avec emplacement pour des placards muraux
  • Salle de bain principale: Équipée d’une baignoire ou d’une douche
  • Chauffage : Pompe à chaleur air / air réversible ATLANTIC

Extérieurs :

  • Jardin: Parcelle de 241 m² avec exposition Sud et Ouest
  • Garage: Garage simple avec espace de rangement

Emplacement :

  • Proximité: A 150m de la place du village au sein d’un petit lotissement

Points forts :

  • Personnalisation: Choisissez les finitions intérieures (carrelage, faïence, portes, etc…) selon vos goûts.
  • Écologique: Conforme à la règlementation environnementale RE2020.
  • Confort: Conception moderne et fonctionnelle avec des espaces optimisés

 

N’hésitez pas à nous contacter au 04.78.05.03.00 pour d’avantages de renseignements…




Partager :
Nous écrire
Les champs indiqués par un astérisque (*) sont obligatoires