1. Qui sommes-nous ?
  2. Programmes & Terrains
  3. ROCHE 38090 - 2 Lots Le Clos du Turitin
Retour

ROCHE 38090 - 2 Lots Le Clos du Turitin

LOT 1 : 260 000€ TTC

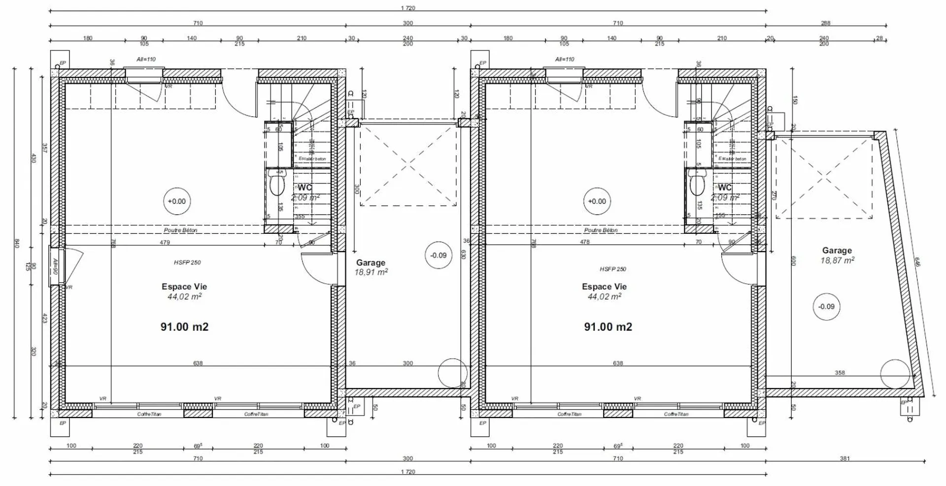
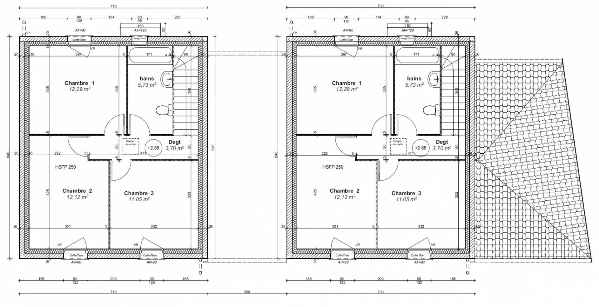
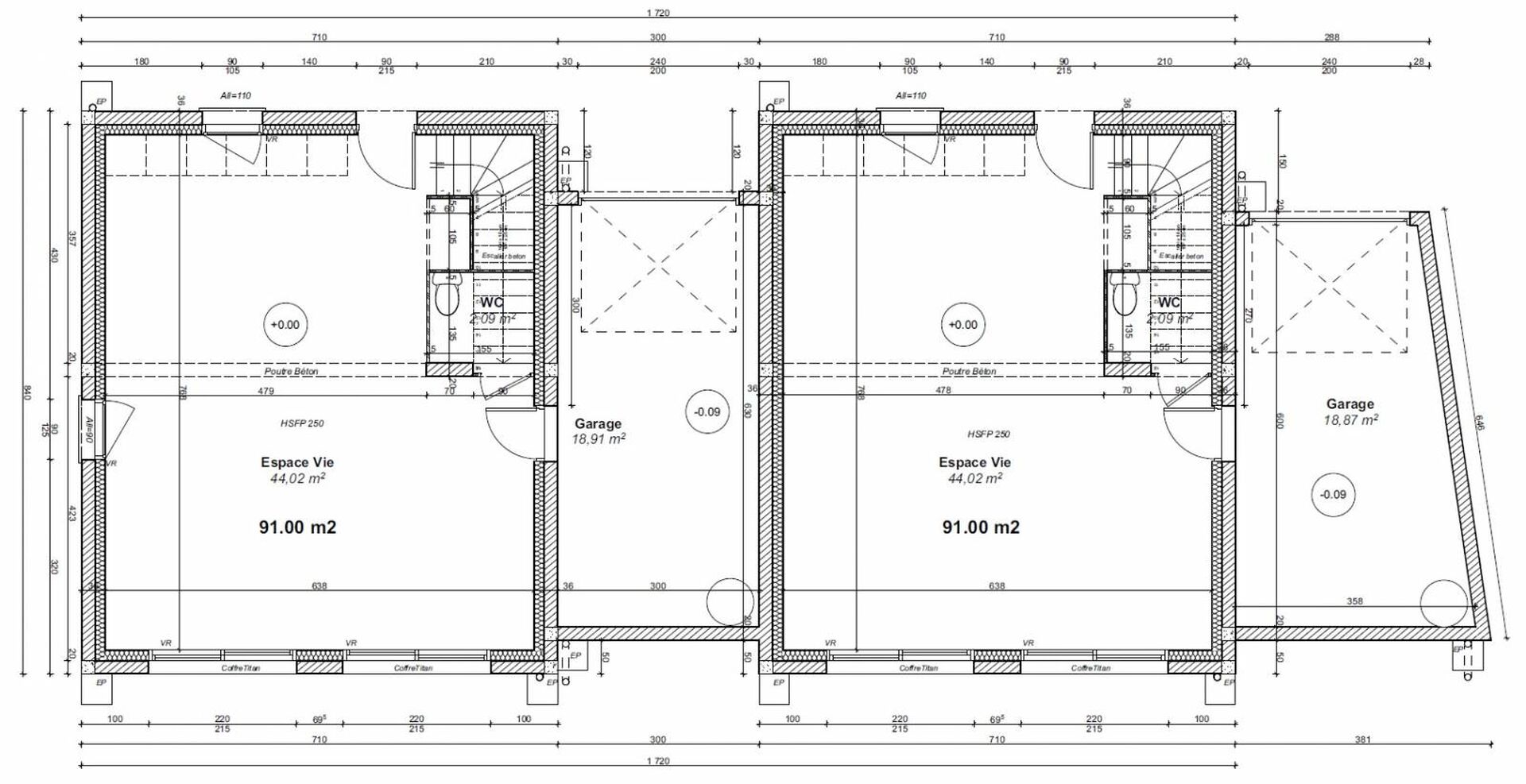
  • Surface habitable : 91m² en étage
  • Surface garage : 19m²
  • Chambres : 3
  • Terrain : Petit terrain plat au calme avec orientation Sud/Ouest
  • Viabilités et raccordements VRD compris
  • Frais de notaire réduit (non inclut dans le prix affiché)

LOT 2 : 250 000€ TTC

  • Surface habitable : 91m² en étage
  • Surface garage : 18m²
  • Chambres : 3
  • Terrain : Petit terrain plat au calme avec orientation Sud
  • Viabilités et raccordements VRD compris
  • Frais de notaire réduit (non inclut dans le prix affiché)
Prix : 250 000 €

Sur la commune de Roche, découvrez un projet de deux maisons neuves, actuellement en cours de construction, avec une livraison prévue pour la fin du 1er trimestre 2026.

Ces maisons sont réalisées conformément à la réglementation environnementale RE 2020 et bénéficient de prestations de qualité, parmi lesquelles :

  • pompe à chaleur air/air réversible,

  • volets roulants électriques,

  • baies vitrées en aluminium,

  • débords de toiture en PVC,

  • finitions soignées.

Construction réalisée par Villas Lespine, avec garantie décennale et assurance dommages-ouvrage pour une tranquillité totale.

 À noter : frais de notaire réduits (non inclus dans le prix affiché).

Partager :
Nous écrire
Les champs indiqués par un astérisque (*) sont obligatoires