1. Qui sommes-nous ?
  2. Programmes & Terrains
  3. SAINT-GENIS-LAVAL 69230 - 1 Lot Chemin de Chazelles
Retour

SAINT-GENIS-LAVAL 69230 - 1 Lot Chemin de Chazelles

Vendu
Prix : 428 000 €



Sur la commune de SAINT-GENIS-LAVAL, chemin de Chazelles VILLAS LESPINE vous présente un projet de construction à proximité immédiate des transports (bus, métro). Cette maison moderne sera bâtie avec des matériaux de qualité, alliant confort, esthétisme et performance énergétique.

Le projet présenté est personnalisable selon vos besoins.

Caractéristiques principales :

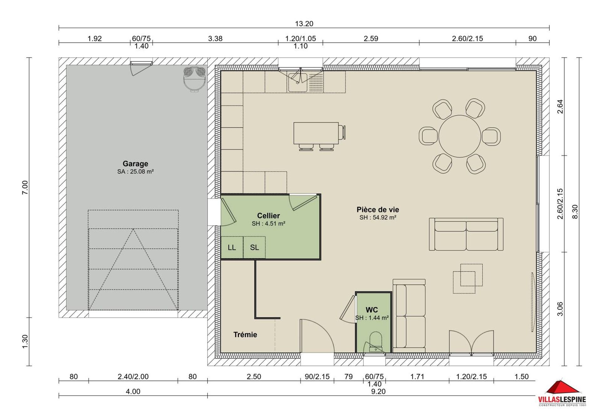
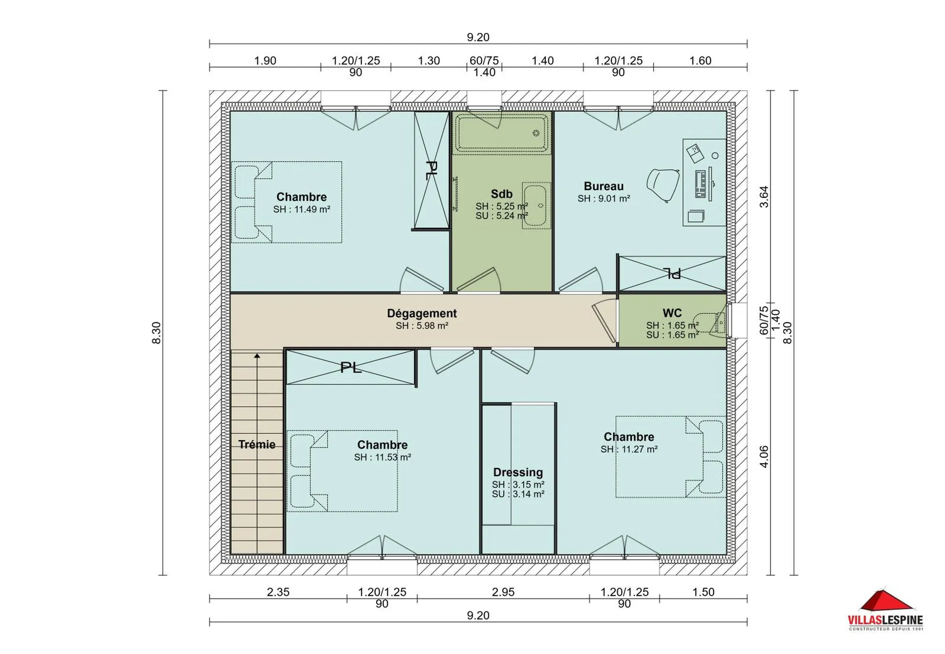
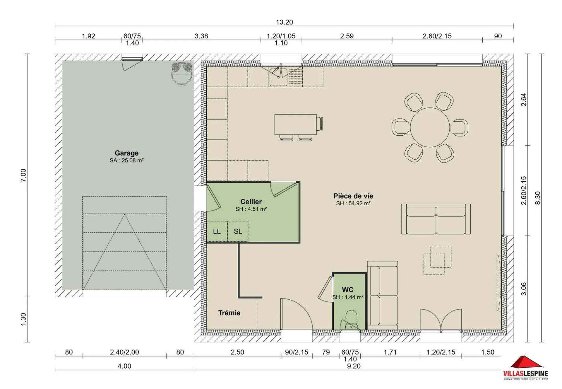
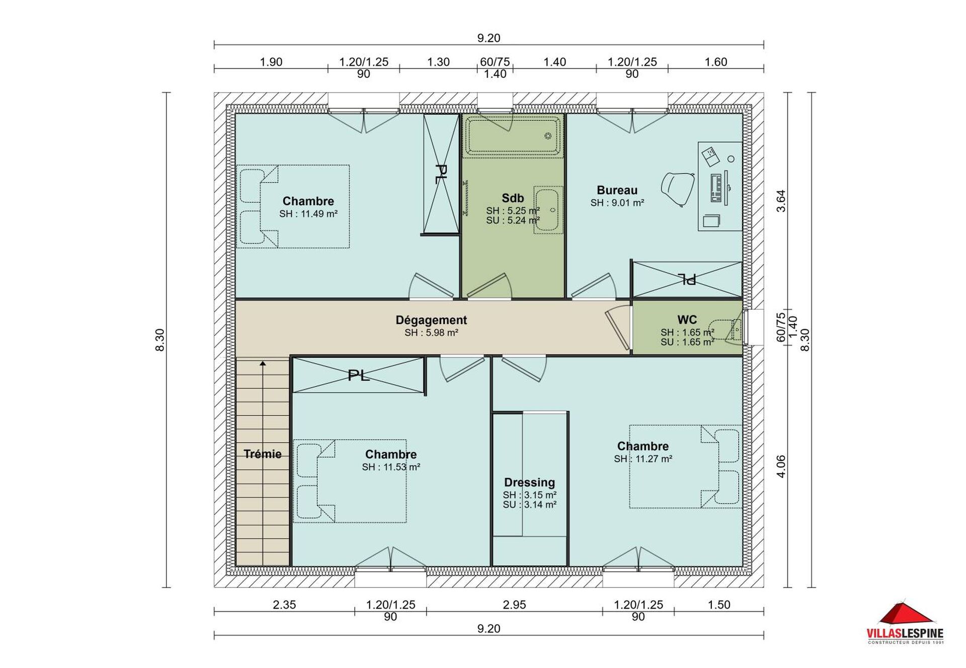
  • Type de bien : Maison individuelle
  • Surface habitable : 120m²
  • Surface garage : 25m²
  • Nombre de chambres : 3 + 1 bureau
  • Terrain : 941m² viabilisé

Aménagements intérieurs :

  • Salon / Séjour / Cuisine : Grand espace de vie lumineux grâce aux baies vitrées ouvrant sur la future terrasse et le jardin (exposition Est / Sud / Ouest)
  • Chambres : 3 chambres avec emplacement pour des placards muraux + 1 bureau
  • Salle de bain principale : Équipée d’une baignoire ou d’une douche
  • Chauffage : Pompe à chaleur air / air réversible ATLANTIC

Extérieurs :

  • Jardin : Grand terrain plat de 941m²

Emplacement :

  • A proximité immédiate des transports (bus, métro)

Points forts :

  • Personnalisation : Choisissez les finitions intérieures (carrelage, faïence, portes, etc…) selon vos goûts.
  • Écologique : Conforme à la règlementation environnementale RE 2020.
  • Confort : Conception moderne et fonctionnelle avec des espaces optimisés

Contactez-nous pour plus d’informations et pour organiser une visite du terrain. Merci


Partager :
Nous écrire
Les champs indiqués par un astérisque (*) sont obligatoires
À découvrir
CHARLY 69390 - 4 Lots Le Jardin de Nane
Vendu

CHARLY 69390 - 4 Lots Le Jardin de Nane

  Au cœur du village de CHARLY limite VOURLES, dans un secteur résidentiel « Le Jardin de Nane » abrite 4 villas individuelles indépendantes avec garage et terrain privatif plat bénéficiant d'une belle exposition.   L’ensemble des villas répondent aux normes environnementales grâce au label RT 201...
Découvrir
Perspective 1
Vendu

BEAUVALLON 69700 - 1 Lot La Chapelaine

Sur la commune de BEAUVALLON à St-Andéol-le-Château dans un petit lotissement, NOUVEAU projet d’une construction de maison individuelle de plain-pied livrable au 3ème  trimestre 2025 comprenant les prestations suivantes : Surface habitable : 91m² Surface garage : 18.50m² Chambres : 3 Terrain : 45...
Découvrir